Стабилизатор напряжения инверторный Baxi Energy 400
Стабилизатор напряжения Baxi Energy 400 инверторный мощность 350 Вт предназначен для защиты подключённого электрооборудования от повышенного или пониженного сетевого напряжения, высоковольтных выбросов и провалов входного напряжения, гармонических искажений, электрических помех.
Условия эксплуатации
Стабилизатор Бакси Энерджи 400 рассчитан на работу в однофазных сетях переменного напряжения с номинальным значением 230 В или 220 В и частотой 50 Гц. При изменении напряжения сети в диапазоне от 90 до 310 В стабилизатор поддерживает уровень выходного напряжения с точностью ±2%.
Функциональность
- электронная защита c восстановлением от короткого замыкания и длительной перегрузки по выходу;
- электронная тепловая защита c восстановлением от внутреннего перегрева;
- электронная защита c восстановлением от аварии сети (пониженное или повышенное входное напряжение – за пределами диапазона 90-310 В);
- электронная аварийная защита (отключение нагрузки при возникновении любой неисправности в стабилизаторе);
- защита от импульсных помех, грозозащита.
Принцип работы
Принцип работы стабилизатора Baxi Energy основан на двойном преобразовании напряжения. Выпрямитель осуществляет преобразование входного переменного напряжения электросети в стабилизированное постоянное напряжение. Инвертор выполняет обратную операцию и трансформирует постоянное напряжение в переменное питающее нагрузку
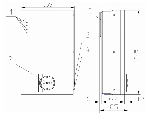
Конструкция и габариты
|
|
1 – светодиодный индикатор; |
Комплектация
- однофазный стабилизатор переменного напряжения BAXI Energy 400;
- 2 дюбеля 6x40;
- 2 самореза 4,2x41;
- кронштейн с отверстиями для крепления;
- руководство по эксплуатации с гарантийным талоном;
- картонный короб.
Техническое обслуживание
При периодическом техническом обслуживании стабилизатора не реже одного раза в полгода проводите следующие работы:
- проверка соответствия индикации текущему режиму работы;
- осмотр внешней поверхности на отсутствие механических повреждений, коррозии и загрязнений;
- очистка внешней поверхности от пыли (производится сухой чистой ветошью);
- осмотр и проверка надёжности крепления всех подключенных кабелей;
- осмотр и проверка вентиляционных отверстий. При обнаружении засорений – очистка вентиляционных отверстий.
Техническая документация: Паспорт
